Kurzbeschreibung
SASEL: 2 Zimmer Mietwohnung mit Balkon und Lift
| Exposetyp: | Wohnung |
| Angebotstyp: | Verkauf + Miete |
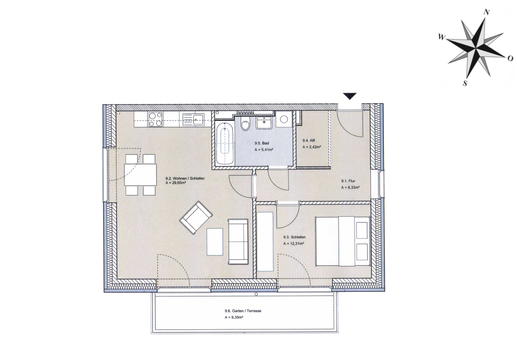
| Wohnfläche: | 63 m² |
| Zimmer: | 2 |
| Besonderheiten: | Einbauküche + Keller + Stellplatz + Balkon + Parkett + Fußbodenheizung |
| Gebäude-Baujahr: | 2020 |
| Gebäude-Zustand: | Neubau |
| Nettokaltmiete: | 975,- EUR |
| zzgl 120,- NK |
Zur Vermietung angeboten wird eine sehr schöne und seniorengerechte 2 Zi.-Neubauwohnung mit großem Balkon, gelegen im 1. Obergeschoss, bequem mit dem Fahrstuhl erreichbar.
Das im Jahre 2020 errichtete Mehrfamilienhaus entspricht dem KfW40-Standard und verfügt über 3-fach isolierverglaste Fenster, hervorragende Fassaden-/Dachdämmung und über eine hocheffektive Holzpelletheizung mit einer elektronisch gesteuerten Lüftungsanlage und Wärmerückgewinnung.
Die 2 Zimmer-Wohnung verfügt über eine Wohnfläche von ca.63m². Zur Wohnungsausstattung gehört eine helle, moderne Einbauküche, Fußbodenheizung im Bad, Echtholzparkett und ein modernes Bad mit Wanne.
Der knapp 6m² großer Keller-Abstellraum, sowie einem Fahrradraum runden das Mietangebot ab. Sofern Verfügbar ist die Anmietung eines offenen Stellplatzes (€ 40,-/Monat) möglich.
Monatliche Kosten:
Netto-Kaltmiete: € 975,00
Betriebskostenvorauszlg. € 65,00
Heizkostenvorauszahlung.: € 55,00
Gesamtmiete: € 1.095,00
Sonstige Kosten:
Mietsicherheit : € 2.925,00
Mietercourtage: entfällt
Stromkosten: sind zwischen Mieter und Versorger abzurechnen.
Mietvertrag:
Abgeschlossen wird ein unbefristeter Staffelmietvertrag (Hamburger Mietvertrag) mit einer jährlichen Mieterhöhung von 2%. Während der Laufzeit der Staffelmiete sind keine weiteren gesetzlichen Erhöhungen der Kaltmiete zulässig. Mindestmietdauer: 3 Jahre.
Tierhaltung:
Mit Ausnahme von Kleintieren (z.B. Ziervögel) bedarf die Tierhaltung der Zustimmung des Verwalters.
Energieausweis:
Ist beantragt.
Lage
Die Wohnung liegt ruhig im straßenabgewandten, rückwärtigen Teil des Hauses und ist nach Süden orientiert. Hervorragende Einkaufsmöglichkeiten findet man am rund um den Saseler Markt (550m) oder im AEZ Alstertal-Einkaufszentrum (900m).
Die nächste Bushaltestelle (150m) ist in 3 Gehminuten erreichbar. Den Busbahnhof und die S-Bahnstation Poppenpüttel (750m) erreicht man fußläufig bequem in 10 Minuten.






Ein echtes Zuhause erbaut sich für ein ganzes Leben. Mit dem Finanzierungsfundament von HYPLIFE lassen wir Ihren Traum Wirklichkeit werden. Bei diesem sehr persönlichen Prozess unterstützen wir Sie bei jedem Schritt. Aus dem Umfeld heraus, indem wir selbst Zuhause sind – in Düsseldorf und Hamburg. Mit gewachsenen Partnerstrukturen, vertrauensvollen, langjährigen Beziehungen zu Banken, einem starken Team und dem ganzheitlichen Blick für Sicherheit, Qualität und Wert.

















