Kurzbeschreibung
WINTERHUDE: Winterhuder Markt in Steinwurfnähe
| Exposetyp: | Haus |
| Angebotstyp: | Miete |
| Standort: | 22299, Hamburg, Winterhude |
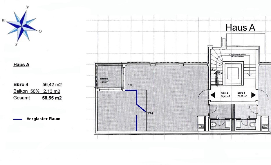
| Wohnfläche: | 59 m² |
| Besonderheiten: | Balkon + Fußbodenheizung + Tiefgarage |
| Gebäude-Baujahr: | 2008 |
| Gebäude-Zustand: | Gepflegt |
| Nettokaltmiete: | 907,53 EUR |
| zzgl 170,- NK 115,- TG-Stellplatz | |
| Courtage: | 3 NKM |
| 1.815,06 zuzüglich 19% MwSt. |
Neuwertige Bürofläche
Wir bieten Ihnen in fußläufiger Lage zum Winterhuder Markt eine ca. 59 m² große
neuwertige Bürofläche im 1 Obergeschoss eines Bürogebäudes (Bj. 2008) an.
Die Büroflächen sind durch hohe Fenster sehr gut belichtet. Die Balkonfläche ist nur
über die beiden Büroräume zu erreichen und Mitbestandteil des Mietangebotes. Eine
Vermietung kann ab 15.10.2019 erfolgen.
neuwertige Bürofläche im 1 Obergeschoss eines Bürogebäudes (Bj. 2008) an.
Die Büroflächen sind durch hohe Fenster sehr gut belichtet. Die Balkonfläche ist nur
über die beiden Büroräume zu erreichen und Mitbestandteil des Mietangebotes. Eine
Vermietung kann ab 15.10.2019 erfolgen.
Gegenwärtige Raumaufteilung
Vom Flur aus zugänglich:
- Garderobe und Toilette
- Pantry-Küche
- großer Büroraum, davon abgeteilt zwei Arbeitsplätze (Glastrennwand)
Vom Flur aus zugänglich:
- Garderobe und Toilette
- Pantry-Küche
- großer Büroraum, davon abgeteilt zwei Arbeitsplätze (Glastrennwand)
Ausstattungsmerkmale
- Fußbodenheizung
- CAT6 Ethernet-Verteilung im Fußboden
- versenkte Anschlüsse für Strom, Telefon und Netzwerk
- Telefon- und Netzwerkanbieter: Kabel Deutschland / Vodafone und Telekom
- TV-Empfang über Kabel und Satellit
- Pantry mit Kühlschrank, Geschirrspüler, Spüle, Oberschrank, Hochtisch
- Platz für Garderobe, Netzwerktechnik und WC
- Ein Tiefgaragenstellplatz kann mit angemietet werden.
Lage
Das angebotene Büro liegt in einer Nebenstraße, ganz in der Nähe des Winterhuder
Marktes. Über einen direkten Zugang, der den Mietern des Büros zugänglich ist,
gelangen Sie in zwei Minuten zum Forum Winterhude.
Marktes. Über einen direkten Zugang, der den Mietern des Büros zugänglich ist,
gelangen Sie in zwei Minuten zum Forum Winterhude.
Verkehrsverbindungen
Der Winterhuder Markt ist neben seiner Funktion als Einkaufzentrum auch ein
Verkehrsknotenpunkt. Die folgenden Buslinien machen hier ihren Halt:
Linie 109 - U Alsterdorf - Rathausmarkt - Hauptbahnhof
Linie 118 - U Wandsbek-Gartenstadt - U Kellinghusenstr.
Linie 20 - S Rübenkamp - Schulweg Bf Altona
Linie 25 - U Burgstraße - Kellinghusenstraße
Linie 600 - U Wandsbek Markt - Bf Altona
Linie 606 - Hamburg Airport - Rathausmarkt
Die nächste U-Bahnstation in ca. 750 m Entfernung ist die Hudtwalcker Straße.
Der Winterhuder Markt ist neben seiner Funktion als Einkaufzentrum auch ein
Verkehrsknotenpunkt. Die folgenden Buslinien machen hier ihren Halt:
Linie 109 - U Alsterdorf - Rathausmarkt - Hauptbahnhof
Linie 118 - U Wandsbek-Gartenstadt - U Kellinghusenstr.
Linie 20 - S Rübenkamp - Schulweg Bf Altona
Linie 25 - U Burgstraße - Kellinghusenstraße
Linie 600 - U Wandsbek Markt - Bf Altona
Linie 606 - Hamburg Airport - Rathausmarkt
Die nächste U-Bahnstation in ca. 750 m Entfernung ist die Hudtwalcker Straße.
Weitere Parkmöglichkeiten
In der Ulmenstraße gibt es nur wenige Parkmöglichkeiten. Im Forum Winterhude sind öffentliche Parkplätze in größerem Umfang vorhanden.
In der Ulmenstraße gibt es nur wenige Parkmöglichkeiten. Im Forum Winterhude sind öffentliche Parkplätze in größerem Umfang vorhanden.

Ein echtes Zuhause erbaut sich für ein ganzes Leben. Mit dem Finanzierungsfundament von HYPLIFE lassen wir Ihren Traum Wirklichkeit werden. Bei diesem sehr persönlichen Prozess unterstützen wir Sie bei jedem Schritt. Aus dem Umfeld heraus, indem wir selbst Zuhause sind – in Düsseldorf und Hamburg. Mit gewachsenen Partnerstrukturen, vertrauensvollen, langjährigen Beziehungen zu Banken, einem starken Team und dem ganzheitlichen Blick für Sicherheit, Qualität und Wert.
Ansprechpartner:
Saskia Eggers
Telefon 040 226 90 55 -14
HYPLIFE GmbH & Co.KG
Mühlenkamp 13a
22303 Hamburg
eggers@hyplife.de

















